Scoutsgroep Dominicus Savio hasn't added a story.
Beste Savianen, ex-Savianen, ouders en sympathisanten,
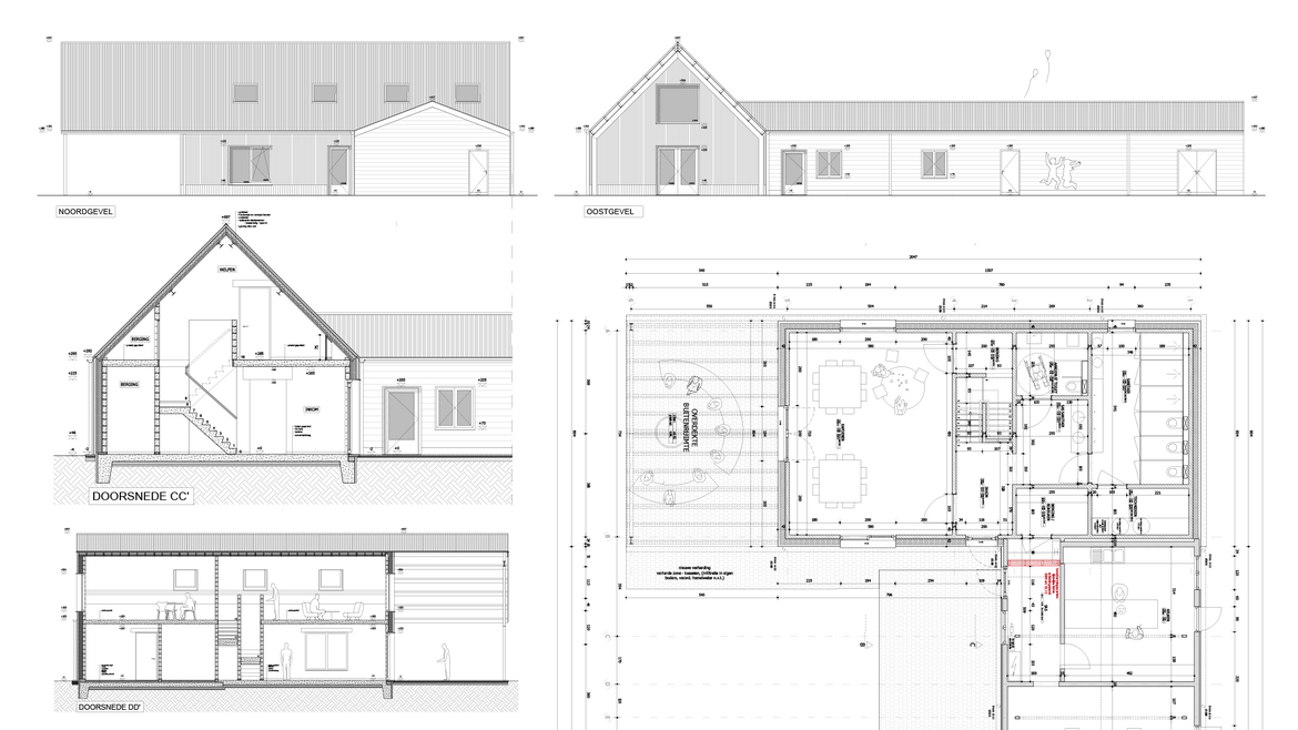
Jullie hebben het misschien al opgevangen: wij zijn gestart met een grondige en broodnodige verbouwing van ons scoutslokaal.
Na jaren van voorbereiding gaan we eindelijk ons lokaal omtoveren tot een moderne, functionele en duurzame ruimte voor onze scouts. We bouwen een volledig nieuwe vleugel met lokalen voor de welpen, kapoenen en (jong-)verkenners. Ook het sanitair wordt volledig gemoderniseerd. Daarnaast vervangen we het dak van de bestaande vleugel die beschadigd raakte tijdens storm Eunice.
Dergelijke verbouwingen hebben natuurlijk een prijzig financieel plaatje. Gelukkig kunnen we voor een groot deel van de kostprijs rekenen op de steun van Stad Brugge en de Vlaamse Overheid. Over de jaren heen hebben we als scoutsgroep ook zelf ook een aardige duit kunnen oppotten, dit dankzij de talloze initiatieven en financiële acties van onze leidersploegen. Dat maakt dat we het grootste deel van onze verbouwingen volledig zelf kunnen financieren, maar door de stijgende materiaalprijzen van de voorbije jaren komen we met ons budget nét uit onder de meest actuele kostenraming.
Daarom hopen we dan ook op al onze leden, oud-leden, ouders & sympathisanten beroep te kunnen doen om onze toekomstplannen mogelijk te maken. Een warme oproep dus voor iedereen die een steentje kan bijdragen! Elke euro die hier gedoneerd wordt gaat rechtstreeks naar onze verbouwingen.
Elke bijdrage is welkom, want vele kleintjes maken één grote. Maar we voorzien ook enkele sponsorpakketten voor op zelfstandigen & bedrijven. Als sponsor krijgt u niet alleen de mogelijkheid om een tastbare bijdrage te leveren aan de toekomst van onze scouts, maar u ontvangt ook zichtbaarheid en erkenning voor uw steun. Bovendien is uw bijdrage 100% fiscaal aftrekbaar, waardoor u met deze bijdrage ook uw zaak vooruit kan helpen. Vraag ons gerust naar de fiscale impact, we maken graag een berekening op maat van uw bedrijf.
Waarom steunen? Als sponsor helpt u niet alleen om het scoutslokaal te transformeren, maar u investeert ook in de toekomst van jonge mensen. De scouts zijn de leiders van morgen, en met uw steun zorgen we ervoor dat ze in een inspirerende omgeving kunnen opgroeien, samen kunnen leren en hun potentieel volledig kunnen benutten.
Alvast bedankt!
Een stevige linker,
VZW Savio
(PS1: De top-up bijdrage bij het afrekenen is geheel vrijblijvend en kan je eenvoudig verlagen!)
(PS2: Schenkingen via overschrijving zijn ook steeds mogelijk op de rekening van VZW Savio: BE75 7360 5161 2451. Vermeld uw naam in de omschrijving van de overschrijving als u wenst dat we deze hier ook vermelden.)
(PS3: Deel onze campagne gerust via WhatsApp, mail, sociale media of postduif zodat we vele mensen kunnen bereiken!)



Perks
Voor een bedrag van €3000 of hoger krijgt u:
- Vermelding van uw (bedrijfs)naam of logo op onze website, levenslang.
- Vermelding van uw (bedrijfs)naam of logo in het saviaantje gedurende 10 jaar.
- Tekstvermelding op het uithangbord in het nieuwe lokaal, levenslang.
Deze sponsoring is 100% fiscaal aftrekbaar in uw zaak.
Voor een bedrag van €5000 of hoger krijgt u:
- Vermelding van uw (bedrijfs)naam of logo op onze website, levenslang.
- Vermelding van uw (bedrijfs)naam of logo in het saviaantje gedurende 10 jaar.
- Full color logo op het uithangbord in het nieuwe lokaal, levenslang.
Deze sponsoring is 100% fiscaal aftrekbaar in uw zaak.
Highlights
See all activity88Activity
Voor een bedrag van €3000 of hoger krijgt u:
- Vermelding van uw (bedrijfs)naam of logo op onze website, levenslang.
- Vermelding van uw (bedrijfs)naam of logo in het saviaantje gedurende 10 jaar.
- Tekstvermelding op het uithangbord in het nieuwe lokaal, levenslang.
Deze sponsoring is 100% fiscaal aftrekbaar in uw zaak.
Voor een bedrag van €5000 of hoger krijgt u:
- Vermelding van uw (bedrijfs)naam of logo op onze website, levenslang.
- Vermelding van uw (bedrijfs)naam of logo in het saviaantje gedurende 10 jaar.
- Full color logo op het uithangbord in het nieuwe lokaal, levenslang.
Deze sponsoring is 100% fiscaal aftrekbaar in uw zaak.
Set as ?
The campaign video will appear in social media and email.
The campaign cover picture will appear in social media and email.
The will appear at the top of your campaign page and in social media and email.
Reset ?
It will be removed from the top of your campaign and won't be used as default in social media and email. The will remain in the media gallery.
Share
Embed
Share a link
Delete update
Delete this story update?
Any pictures or videos will remain in the campaign's media gallery.
Report campaign
Report submitted
Thank you. We take reports like yours very seriously. Our goal is to keep the community safe.
Please know that we may contact you for more information, but that we won't notify you personally of our decision. If the campaign remains available within a few days, it's likely that we determined it not to be in violation of our policies.
Thank you. We've already received your previous report. If the campaign remains available within a few days, it's likely that we determined it not to be in violation of our policies.
Tell us about the problem. Please fill in both fields below.
Record a video
Upload a video
Nothing grabs attention for your cause like a personal video. Take a minute or two to record one now. Record a short video message of support. Or upload one from your device. You can preview or redo your video before you post it.
Nothing grabs attention for your cause like a personal video. Upload a short video message of support. Upload a short video message of support. Or record one right now.
- Most effective video length: about a minute.
- Maximum length: 5 min.
- You can preview or redo your video before you post it.
Heads up! The existing video will be replaced.
Email your friends
Join our team
Your endorsement banner
Use your endorsement banner to tell why our cause matters to you. Such personal endorsements are proven to increase campaign contributions. When enabled, your endorsement banner appears at the top of the campaign for everyone who visits a link you shared.
You can always adjust your endorsement from the campaign Share page—even if it's been disabled.
Your message
Tell people why our cause matters to you. Your personal message will encourage others to help. Easy, effective, optional.
Say it in video
Short personal videos by supporters like you are incredibly powerful. Record one right now and you'll help us raise more money. Easy, optional, effective.
Add a personal goal
Set a personal fundraising goal. You'll encourage more contributions if you do. And rest easy. There's no obligation to achieve your goal or bad consequences if you don't. Easy, optional, effective.
We have a video!
Video thumbnail
We'd love to show you our campaign video. Want to take a look?
, you're already on the team.
