Your share could raise $30
Before you go, did you know that simply by sharing this campaign, you could help it raise $30? It's an effective way to support the cause.
Share this campaign No thanksNoriyoshi Needle hasn't added a story.
TL;DR
I’m an American-Japanese artist and builder living in Japan, working with an architectural group that renovates abandoned homes (akiya).
I’ve recently taken responsibility for a 100-year-old property in Himeji and am in the process of restoring it into a living and studio space, with plans to use it long-term as an artist workspace and small residency called Kiwama(きわま・際間).
I’m seeking support specifically to cover major structural and technical work (roof, utilities, reinforcement) so I can complete the rest myself and ensure the house can safely serve artists and the local community for years to come. Your support would help remove the most critical barriers to making the space safe and usable.
私は日本在住のアメリカ系日本人のアーティスト/大工で、空き家を再生する建築チームとともに活動しています。
このたび、兵庫県姫路市にある築100年の空き家を引き継ぎ、住居兼スタジオ「Kiwama(きわま・際間)」として再生するプロジェクトを始めました。将来的には、制作拠点として長期的に使用し、小規模なアーティスト・レジデンスとしても活用する予定です。
このクラウドファンディングは、屋根工事や構造補強、ライフライン整備など、個人では対応が難しい専門工事にかかる費用について、皆様からのご支援を募りたいと思い立ち上げました。これらの基盤を整えることで、残りの作業は自らの手で進め、安全で継続的に活用できる場を目指します。
Hello! My name is Nori, I'm a 27 year old American-Japanese artist/designer/carpenter from Worcester, Massachusetts. | はじめまして。 アメリカと日本にルーツを持つアーティスト/デザイナー/大工の 若林 徳義 と申します。現在は日本に拠点を置き、空き家の再生を行う建築チームと共に活動しています。 |

Before explaining more about the house I want to first
give you a brief background on myself and my most recent projects:
I was born in Kyoto, Japan, however I was
raised in the United States. I graduated from
Massachusetts College of Art & Design
in 2021 with a BFA in Studio for Interrelated Media (SIM).
Soon after completing a residency at Mass
MoCA that summer after graduating, I decided to
uproot my life and move to Japan where I have remained for
four years now working for a small alternative architecture
team based in Kobe called Haioku Group led by
Shuji
Nishimura. | 本題に入る前に、これまでの経歴と最近の取り組みについて簡単にご紹介させてください。私は京都で生まれ、その後アメリカで育ちました。2021年にマサチューセッツ芸術大学(Massachusetts College of Art & Design)を卒業し、Studio for Interrelated Media(SIM)専攻にてBFAを取得しました。卒業後、その年の夏にマサチューセッツ現代美術館(Mass MoCA)でのレジデンシーを終えたのち、日本へ拠点を移すことを決意しました。現在は神戸を拠点とする建築チーム 廃屋グループ(代表:西村修司氏) の一員として、約4年間活動を続けています。 |

| Haioku Group specializes in renovating abandoned homes (akiya) and turning them into art/community and low-cost living spaces. |
廃屋グループは、日本各地の空き家を再生し、アートやコミュニティ、低コストな住居として活用することを目的とした建築・再生プロジェクトを行っています。 |

One such project, called Bison, is a
cluster of nine buildings that has been renovated into a small
art village of sorts. Bison contains a
gallery, several co-op houses, a workshop, tea room, a garden,
and an international artist
residence. | 廃屋グループの代表的なプロジェクトのひとつに バイソン があります。 バイソンは、9棟の建物を再生して構成された、小さなアートヴィレッジのような場所です。ギャラリー、シェアハウス、工房、茶室、庭、そして海外からのアーティストも受け入れるレジデンス機能を備えています。 |
| I have had the pleasure of living at Bison for three years, where I have met so many inspiring people, slowly developed skills in construction, and been part of a burgeoning creative community. | 私はこの バイソン に約3年間住みながら、多くの刺激的な人々と出会い、建築や施工の技術を少しずつ学び、創造的なコミュニティの一員として活動してきました。ここで過ごした時間は、技術だけでなく、「場所が人を育て、人がまた場所を育てていく」という感覚を、自分の中に強く残しました。 |

About a 15 minute walk from Bison, there
is a small apartment building where I completed my
first solo architectural project for Haioku
Group last June: | バイソンから徒歩約15分の場所にある集合住宅にて、昨年6月、廃屋グループ の仕事として初めて単独で設計・改修を担当する機会をいただきました。 |

| I was commissioned to both design and renovate a small studio apartment as a part of this 6-apartment project. | 全6室あるスタジオアパートのうち1室を、設計から施工まで一貫して担当しました。 |
Before:
After:


| I was inspired by the shrine that sits directly outside the apartment’s window to make a space that was simple and calm in the hopes to offer a space for someone contemplative and minimal. | この部屋の窓の外には小さな神社があり、その静かな佇まいに影響を受け、「簡素で落ち着きのある、思索的な時間を過ごせる空間」を目指しました。 |

| The walls were plastered with a papercrete mixture I made using newspaper and cardboard. | 壁には新聞紙と段ボールを用いたペーパークリートを使用し、 |

| The living room floors were chemically aged with vinegar, black tea, and rusted metal. | 床は酢、紅茶、錆びた金属などを使って経年変化を施しました。 |
Almost all wood used for this project was recycled from
abandoned buildings. | 使用した木材の多くも、解体された建物から再利用したものです。 |

This was such a major educational experience for me and I
am forever grateful to have the guidance and trust of
Nishimura-san as well as my many mentors
throughout the process.
During this project, Haioku Group was the
subject of a short KansaiTV documentary where
I am briefly featured. If you wish you can view it here:
| 試行錯誤の連続でしたが、自分の手で空間が立ち上がっていく過程は、建築と向き合う姿勢を大きく変える経験となりました。西村さんをはじめ、多くの方々からの指導と信頼に心から感謝しています。
なお、この取り組みの期間中、廃屋グループは関西テレビの短編ドキュメンタリーで紹介され、私も短く出演しています。 |
After finishing that apartment, my next project was to
design and complete an English bookstore/Risograph studio
called Okuba that I run with my friends
Daniel and Kou. I finished the renovation and we just opened
in November! | その後、友人の Daniel、Kou
と共に、英語書籍とリソグラフ印刷を中心とした書店兼スタジオ Okuba の設計・改修を行いました。2024年11月にオープンし、現在も運営を続けています。 |
Before:
After:




Please come visit us! Apart from books and Riso printing,
we also sell art, host events, and publish our own zines!
Those have been my two most recent design and renovation
projects, and I hope to use this fundraiser to help begin the
next one—
This house. | 書籍やリソ印刷のほか、アート作品の販売、イベント開催、自主制作のジンの発行なども行っています。お近くにお越しの際は、ぜひお立ち寄りください。
これら2つのプロジェクトを経て、次に取り組むことになったのが、今回ご紹介する...
姫路の空き家 です。 |

Due to Japan's growing crisis of dilapidated homes, my
boss Nishimura-san often gets contacted by
people all over the country, asking him to take their homes so
that we may save them from even more disrepair and liability;
to find them a use. As these requests grow, they come from
farther and farther away, and Nishimura-san
cannot manage them all. Instead, he hopes to use these
properties as an opportunity to give young people the chance
to rescue a home themselves and transform them into something meaningful.
Therefore... I officially own this 100 year old property in
Himeji, Japan, near the ocean. While I was
able to take on the responsibility of acquiring the house
itself, the scale of repairs and professional work required
goes beyond what I can realistically fund on my own. | 日本では老朽化した住宅の増加が社会的な課題となっており、廃屋グループ にも全国各地から「家を引き取って活用してほしい」という相談が多く寄せられています。しかし、すべてを引き受けることは難しく、西村さんは「若い世代が自ら家を引き継ぎ、再生する機会」として活用できないかと考えていました。 そのような流れの中で、私は姫路市の海に近い場所にある、築約100年の住宅を引き受けることになりました。この家と出会ったとき、簡単な道ではないと感じる一方で、「まだ役割の残っている家だ」と直感しました。その感覚が、この取り組みの出発点になっています。 |
![]() | ![]() |
| Half of the house is over 100 years old and the other half was built as an extension about 60 years ago. It's in decent condition... but in certain places it needs some serious TLC. It was left untouched for 10 years after the previous owners passed away and the neglect is quite apparent. At my job there isn't much I haven't seen before, and as abandoned buildings in Japan go, this house remains quite on the manageable side with the main structure still standing strong. | 建物の約半分は築100年以上で、残りの部分は約60年前に増築されたものです。この家は、前の所有者が亡くなられてから約10年間手つかずの状態で、全体としては構造が保たれているものの、場所によっては丁寧な補修が必要です。ただし、これまで多くの空き家を見てきた経験からすると、十分に再生可能な状態だと考えています。 |

| The house is located in a semi-rural neighborhood on the edge of Himeji city and is a 5 minute walk from the ocean. Himeji is a coastal city within the Kansai Region located in western Hyōgo Prefecture. Himeji has a population of approximately 530,000 and is famous for Himeji Castle, a UNESCO World Heritage Site. | 場所は姫路市の郊外で、海まで徒歩約5分。人も少なく、静かで落ち着いた海辺です。 |
![]() | ![]() |
The area surrounding the house is a hybrid of industrial
and residential, and consists primarily of working class and
elderly people, some families, and its fair share of abandoned homes. | 工業地域と住宅地が混在し、高齢者や家族世帯が暮らす一方、空き家も多く見られる地域です。 |

The property cannot be directly accessed by car, and
therefore isn't viable for typical demolition. As time goes
on, the building poses as more and more of a hazard to the
neighboring homes, especially during a typhoon or earthquake,
which are fairly common here.
By renovating this house, I hope to reinforce a culture of
architectural re-use in contrast to the dominant norm of
building ever-more apartment complexes in increasingly dense
cities. I wish to breathe new life into the neighborhood,
preserve traditional structures, and establish a base of
operations where the house can have a continual creative and
cultural impact.
Oddly enough, before I was sure what to do with the
house, the project was featured as part of a Spring '24
campaign for MUJI directed by the urbanist
team For Cities.
please excuse the clipped up audio and blatant
commercialization :p | 敷地は車で直接アクセスできないため解体が難しく、放置されたままでは台風や地震の際に周囲に危険を及ぼす可能性もあります。 なお、このプロジェクトは、具体的な用途が定まる前に、MUJI(無印良品)の2024年春のキャンペーンにて紹介される機会がありました。監督:フォー・シティーズ (For Cities) |

| Although surreal, it was quite cool to see myself in every MUJI store in the country and I am forever grateful for the experience. The experience also helped affirm the broader relevance of this project and the questions it raises around reuse, care, and living with existing structures. | 少し不思議な経験ではありましたが、この取り組みが持つ社会的な意味を改めて実感しました。 |

![]() | ![]() |
Since obtaining the house, with the help of my dear
friends, neighbors, and colleagues, I have been uncovering,
sorting, clearing, recycling, giving away, and organizing
all the things left by the previous owners. | 家を引き継いでから、友人や近隣の方々の協力を得ながら、残された家財の整理、清掃、分別、再利用などを進めてきました。 |
![]() | ![]() | ![]() | ![]() | ![]() | ![]() | ![]() | ![]() | ![]() | ![]() | ![]() | ![]() |
| There was a lot of stuff. | 想像以上に多くの物が残されていましたが、 |
![]() |
![]() | ![]() | ![]() |
| After laborious months, I have finally reached the point where I can actually do some demolition to peel back the layers to assess the structure itself and imagine the future of this space. | 数か月かけてようやく解体・調査の段階に入ることができました。 |
![]() | ![]() | ![]() | ![]() | ![]() | ![]() | ![]() | ![]() |
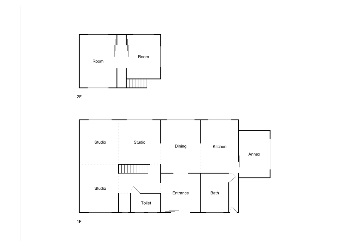
| Here is the general layout of the property along with a very preliminary sketch of a potential outcome for the first floor. The design will change as construction begins and I plan to release new designs, sketches, 3D models, photos, videos, etc. as things move along. | 現在は構造を確認しながら、1階部分の将来的な使い方について検討しています。設計は今後も変化していく予定で、その過程も含めて、図面や写真、動画などを共有していきたいと考えています。 |

I am naming this space Kiwama(きわま・際間). In Japanese, kiwa speaks to borders and thresholds; ma to the living space between things. Together, they name a condition of alert restfulness—a pause that does not retreat, but leans forward. A house that sits between extremes, potentiality, and momentum. This is a place where thoughtful artistic minds can rest, become less reactive, and grow more open within their practices. A place to disrupt old patterns, experiment with routine, and play with our core inclinations as creative people. Between ever-increasing militarization and rising anti-foreigner sentiment across the world, it feels increasingly important to foster cultural spaces where a global community of critical thinkers can connect, work together, and cultivate a shared language—one that resists dogma, disinformation, and hardened discourse. Kiwama is meant to be such a space. | この場所を、Kiwama(きわま・際間)と名付けました。 Kiwamaは、つくる人が呼吸を整え、落ち着いて制作に向き合える場を目指しています。ひとりで集中する時間も、誰かとアイデアを交わす時間も大切にしながら、日々の習慣から少し離れて、自分の「つくりたい」を確かめ直せる場を育てていきます。 世界各地で軍事化が進み、排外的な感情が強まるいま。国や言語を越えて人が集い、共に手を動かし、言葉を交わせる開かれた場が必要だと感じています。Kiwamaは、そのための場所でありたいと考えています。
|

Why I’m Asking for SupportI created this fundraiser to seek support for the parts of Kiwama that I cannot realistically take on alone. Specifically, funds will go toward material costs and essential work such as roofing, structural reinforcement, and updating utilities including plumbing, electrical, gas, and heating. I’ve already invested months of physical labor and personal resources into clearing, preparing, and beginning the renovation of this house. With these major hurdles addressed, I’m confident I can complete the remainder of the work myself over time. While my years in Japan have been deeply rewarding, it has been difficult to carve out space for my own artistic practice and for sustained collaboration with other artists. My hope is for this house to become a place centered on making—where I, and others, can work seriously, share ideas, and contribute creatively to the surrounding community. Once complete, I plan to use the house primarily as a studio, while also hosting artists from Japan and abroad through a small, informal residency. I would also love to open the space occasionally for film screenings, workshops, talks, and performances that connect artists with neighbors and visitors alike. If all goes well, I aim to complete the core renovation within one year, and I plan to share the process openly through drawings, photos, videos, and updates along the way. Kiwama represents an opportunity to take responsibility for an existing structure and give it a future rooted in care, reuse, and creativity. If you see value in supporting that effort—whether as an artist, a builder, or as someone attempting to rethink how we treat homes and neighborhoods—I would be incredibly grateful. Any amount of support, large or small, makes a real difference. If you’re unable to donate, sharing the campaign is extremely meaningful. Thank you so much for reading and for being part of this journey. — | ご支援をお願いする理由今回のクラウドファンディングでは、個人では対応が難しい部分についてご支援をお願いしたいと考えています。具体的には、屋根の修繕、構造補強、給排水・電気・ガス・暖房設備など、専門業者による工事や資材費に充てさせていただきます。 これまでの片付けや下準備には、すでに多くの時間と労力を費やしてきました。これらの大きな課題を乗り越えることができれば、その後の作業は自分自身で少しずつ進めていく予定です。 完成後は、主に自身の制作スタジオとして使用しつつ、国内外のアーティストを迎える小規模なレジデンスとしても活用したいと考えています。また、上映会やワークショップ、トークイベントなどを通して、地域とつながる場としても開いていけたらと思っています。 最後にこのプロジェクトは、ひとつの家を引き受け、その歴史と向き合いながら、次の使い手へとつなぐ試みです。建築の再利用や地域との関係、ものを大切にすることに価値を感じていただける方に、もしご賛同いただけましたら大変ありがたく思います。 ご支援の金額にかかわらず、一つひとつが大きな力になります。もしご支援が難しい場合でも、情報を共有していただけるだけで大変励みになります。 最後までお読みいただき、ありがとうございました。 — |
Perks
This option is for those not interested in any of the rewards on offer and simply wish to support the project. You can choose how much you wish to contribute! Thank you so much!
リターン不要でプロジェクトを応援したい方のための支援プランです。ご支援額はお好きな金額をお選びいただけます。
Digtal Photo Album + Name engraving + You will receive a limited postcard size Risograph art print with a thank you note on the back.
デジタルフォトアルバムの共有 + 名前の刻印+本プロジェクトにまつわるオリジナルデザインのポストカードをリソグラフで制作し、メッセージを添えてお送りします。
Digital Photo Album + Name engraving + Postcard + a limited project themed B4 size Risograph art print.
デジタルフォトアルバムの共有+名前の刻印 +ポストカード+本プロジェクトにまつわるリソグラフのオリジナルポスター(B4サイズ)をお送りします。
Digital Photo Album + Name engraving + Postcard + Poster + a private 1 hour virtual studio visit, a tour of the space, and open conversation.
デジタルフォトアルバムの共有+名前の刻印 +ポストカード +ポースター+Noriと1時間ほどオンラインでお話ししながら、スタジオを紹介します。
Digital Photo Album + Name Engraving + Postcard + Poster +
You’ll be invited, as a supporter of this project, to visit and spend
one night at the completed house — sharing time in the space that your
support helped bring into being.
(1 room, up to 2 people.
Scheduling by mutual agreement. Redeemable within 1 year of completion.)
デジタルフォトアルバムの共有+名前の刻印+ポストカード+ポスター+
完成後のKiwamaにご招待し、1泊お過ごしいただけます。
ご支援で生まれた空間を、ゆっくり体験していただけたら嬉しいです。(1室最大2名/日程はご相談のうえ決定します/完成後1年以内にご利用ください)
Highlights
See all activity99Activity
This option is for those not interested in any of the rewards on offer and simply wish to support the project. You can choose how much you wish to contribute! Thank you so much!
リターン不要でプロジェクトを応援したい方のための支援プランです。ご支援額はお好きな金額をお選びいただけます。
Digtal Photo Album + Name engraving + You will receive a limited postcard size Risograph art print with a thank you note on the back.
デジタルフォトアルバムの共有 + 名前の刻印+本プロジェクトにまつわるオリジナルデザインのポストカードをリソグラフで制作し、メッセージを添えてお送りします。
Digital Photo Album + Name engraving + Postcard + a limited project themed B4 size Risograph art print.
デジタルフォトアルバムの共有+名前の刻印 +ポストカード+本プロジェクトにまつわるリソグラフのオリジナルポスター(B4サイズ)をお送りします。
Digital Photo Album + Name engraving + Postcard + Poster + a private 1 hour virtual studio visit, a tour of the space, and open conversation.
デジタルフォトアルバムの共有+名前の刻印 +ポストカード +ポースター+Noriと1時間ほどオンラインでお話ししながら、スタジオを紹介します。
Digital Photo Album + Name Engraving + Postcard + Poster +
You’ll be invited, as a supporter of this project, to visit and spend
one night at the completed house — sharing time in the space that your
support helped bring into being.
(1 room, up to 2 people.
Scheduling by mutual agreement. Redeemable within 1 year of completion.)
デジタルフォトアルバムの共有+名前の刻印+ポストカード+ポスター+
完成後のKiwamaにご招待し、1泊お過ごしいただけます。
ご支援で生まれた空間を、ゆっくり体験していただけたら嬉しいです。(1室最大2名/日程はご相談のうえ決定します/完成後1年以内にご利用ください)
Set as ?
The campaign video will appear in social media and email.
The campaign cover picture will appear in social media and email.
The will appear at the top of your campaign page and in social media and email.
Reset ?
It will be removed from the top of your campaign and won't be used as default in social media and email. The will remain in the media gallery.
Share
Embed
Share a link
Delete update
Delete this story update?
Any pictures or videos will remain in the campaign's media gallery.
Report campaign
Report submitted
Thank you. We take reports like yours very seriously. Our goal is to keep the community safe.
Please know that we may contact you for more information, but that we won't notify you personally of our decision. If the campaign remains available within a few days, it's likely that we determined it not to be in violation of our policies.
Thank you. We've already received your previous report. If the campaign remains available within a few days, it's likely that we determined it not to be in violation of our policies.
Tell us about the problem. Please fill in both fields below.
Record a video
Upload a video
Nothing grabs attention for your cause like a personal video. Take a minute or two to record one now. Record a short video message of support. Or upload one from your device. You can preview or redo your video before you post it.
Nothing grabs attention for your cause like a personal video. Upload a short video message of support. Upload a short video message of support. Or record one right now.
- Most effective video length: about a minute.
- Maximum length: 5 min.
- You can preview or redo your video before you post it.
Heads up! The existing video will be replaced.
Email your friends
Join our team
Your endorsement banner
Use your endorsement banner to tell why our cause matters to you. Such personal endorsements are proven to increase campaign contributions. When enabled, your endorsement banner appears at the top of the campaign for everyone who visits a link you shared.
You can always adjust your endorsement from the campaign Share page—even if it's been disabled.
Your message
Tell people why our cause matters to you. Your personal message will encourage others to help. Easy, effective, optional.
Say it in video
Short personal videos by supporters like you are incredibly powerful. Record one right now and you'll help us raise more money. Easy, optional, effective.
Add a personal goal
Set a personal fundraising goal. You'll encourage more contributions if you do. And rest easy. There's no obligation to achieve your goal or bad consequences if you don't. Easy, optional, effective.
We have a video!
Video thumbnail
We'd love to show you our campaign video. Want to take a look?
, you're already on the team.

After:

After:




























